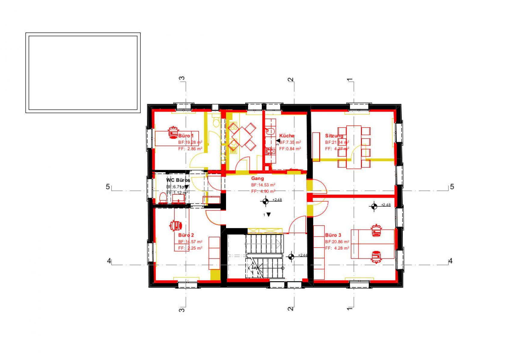
| Innenrenovation / Pfarrhaus in Steinach Previous Next Previous Next Zurück zur Übersicht Das Pfarrhaus wird innen gänzlich renoviert. Sämtliche Geschosse werden unter Berücksichtigung denkmalpflegerischer Massnahme zeitgemäss erneuert.